【シティテラス南砂】の特徴やどんな人におすすめな物件かなど、事前に知っておいた方が良い情報などを紹介していきます。
自分の家族に合った分譲マンションを探すのは時間も体力も必要だし分からない事だらけで大変だと思います。
安い買い物ではないですし…。
はまちゃんそんな方に少しでも役立つ情報を届けたいと私は思っています…!
私は、東京の組織設計事務所で16年間、分譲マンションの設計・監理している一級建築士です。
設計者目線から見たシティテラス南砂町を一緒に見て行きましょう!
では、さっそくですが【シティテラス南砂】は以下の方におすすめな物件となっております。
- 子育てを良い環境で育てたい家族
- 都心への利便性を重視している家族
- 良い住環境に恵まれているマンションを探している家族
- 効率の良いマンションを探している家族
物件概要・案内図について



まずは物件概要から確認していきましょう。
物件概要
所在地:東京都江東区南砂四丁目261番10外
交通:東京メトロ東西線「南砂町」駅まで徒歩7分総戸数150戸
完成年月:2024年3月中旬予定
入居(引渡):予定日2024年5月下旬
敷地面積:2652.32m2
建築面積:1330.87m2
建築延床面積:13015.83m2
構造・規模鉄筋:コンクリート造 地上15階建
地目:宅地
用途地域:準住居地域、第二種住居地域、第一種住居地域
建ぺい率・容積率:60%(角地緩和適用にて70%)・準住居地域400%、第二種住居地域400%、
第一種住居地域300%
建築確認番号:第ERI21044295(2022年3月2日付)
駐車場総台数:42台(機械式駐車場:40台、平置駐車場1台、身障者駐車場:1台)
他に平置来客用駐車場1台
駐車場使用料:(月額)25,000円~31,000円
自転車置場:総台数300台(2段式下段スライド式186台(上段75台、下段111台)、平置114台)
自転車置場利用料:(月額)300円~3,500円
バイク置場:総台数15台
バイク置場使用料:(月額)6,000円
分譲後の権利形態:建物は区分所有権、土地は共有
管理形態:区分所有者全員により管理組合を結成し、管理会社に委託
管理員の勤務形態:通勤管理
管理会社:住友不動産建物サービス株式会社
売主・住友不動産株式会社
販売代理:住友不動産販売株式会社
設計:株式会社長谷工コーポレーション一級建築士事務所
施工:株式会社長谷工コーポレーション
土地所有権付きの物件となっております。駐車場設置率は28%となっております。
駐輪場設置率は200%となっており、一家族に2台となっております。
案内図


現地写真(2023/8/6撮影)


交差点にから見えるシティテラス南砂。存在感ありますね!敷地の南側は低層な街が広がっているので竣工すると
目立つマンションにそうです。道路は交通量が多いので購入される際はサッシの遮音等級や給気口が防音型が使用
されているかなど確認してみましょう。


道路を挟んで敷地の左側に木曽路があります。そこに植わっている街路樹が街並みに対してすごく良い雰囲気を
出してくれています。個人的な感想ですがどことなくハワイ感がありテンションが爆上がりました。
周辺環境を含んだ環境の良さが際立つ物件だと思いました。


敷地南側からの写真です。道路の広さにゆとりを感じます。この道路幅は西側の世田谷区とはまた違った良い点だと
思っております。中層階くらいから景色が抜けていて良い景色が楽しめそうですね。


マンションから駅へ向かう途中にある南砂3丁目公園横の歩道です。駅まで徒歩7分の間に公園があり、しっかり
した緑量がある道を通りながら通勤できるのって素敵な事だと思います。
通勤・通学だと毎日のことなので気持ち良く駅に向かうことができるのは大切なことだと思います。


東西線『南砂町駅』です。駅自体は地下鉄の入り口なのでこじんまりしておりますが、落ち着きがあり必要十分と
いった感じを受けました。


駅前にはコンビニもあり便利ですね。そしてなんといっても駅前の通りから物件が見えます。我が家を見ながら
帰宅できることって安心感もあり素敵なことだなと思いました。
反対方向には、ヤマダ電気・マクドナルド・サイゼリアなどがありますので便利です。
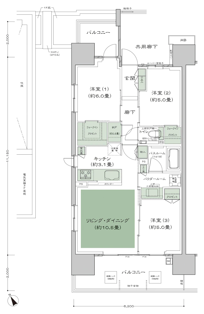
住戸プランについて



公式HPには2タイプの間取り図が公開されております。共通する特徴を見ていきましょう。


- 専有部内の扉が全て引戸になっている部分にこだわりを感じます。スペースを有効に活用できます。
- バルコニー、廊下側とも柱が外に出ているので有効率が上がっており、部屋の使い勝手が良いです。
- LD横の洋室との仕切りはウォールドアになっています。最近は珍しくはないですが、空間を気軽に変更できるのは嬉しいものです。
- 洋室(1)、(2)の収納がウォークインクローゼットになっていて収納力抜群です。
- トイレに手洗いカウンターが設置されています。カウンターがあると色々と飾り付け楽しめますね。
- バルコニーの奥行きが2.0mあります。最近は1.8mくらいに抑えられている物件も多いですがしっかりとした奥行きを確保されております。
- バルコニーにスロップシンクも設置されている点が嬉しいです。通常ルーフバルコニーがある住戸にのみ設置されていることが多いですが、全住戸ついているので嬉しいですね。
良い点の裏には良くない点もありますので見ていきましょう。
- 専有面積67㎡台なのでLDの畳数が約10畳と狭くなっております。但し、洋室(3)のウォールドアを開けることで空間を拡張できます。
- キッチン上部の吊戸棚収納がありません。その代わり食品庫は付いております。
- 洗濯機置き場の上部に吊り戸棚がありません。
乾燥機を設置できるメリットもありますので悩ましいところです。 - ウォールドアを収納した際に洋室側に出っ張っている。
設計側からすると悩ましいところですが、開けたときに出ているとスッキリ感は少し損なわれます。
A1タイプ (3LDK+N+2WIC)
専有面積:67.37m2
バルコニー面積:17.19m2(南側12.40㎡+北側4.79㎡)


- A1タイプは共用廊下の突き当たりに位置しており、廊下部分が広く設定されております。
また、扉前には縦格子が設置されており、プライバシーと防犯性を高めております。 - パウダールームの扉がキッチン横にあり引戸になっていているので家事の動線が近く家事がはかどります。
- 玄関の土間部分が広く設定されており、子供の靴など沢山置けるので使い勝手が良くなっております。
- 洋室(1)には北側にもバルコニーが設置されており二面バルコニーはありがたいです。
- 洋室(1)のウォークインクローゼットの棚はコの字に回っており収納力抜群です。
A5タイプ (3LDK+N+2WIC)
専有面積:67.33m2
バルコニー面積:12.40m2


- 玄関扉前のスペースは柱型が外部側に出ているのでプライベート感が高くなっております。
- 玄関土間が広く設定されており、靴をたくさん置くことができます。
- 洋室(1)(2)にはしっかりとウォークインクローゼットが設置されており収納力抜群になっております。
- 納戸も完備されていて、内部には棚もあります。
- 部屋の扉は基本的に引戸となっており扉軌跡部分を有効に使うことができるようになっております。
予想販売価格
販売価格は8月上旬の時点では未定ですが、坪単価370〜400万円台と予想されております。
67㎡だと20.26坪になりますのでおおよそ7600万円〜8200万円台と予想されます。
都内のマンション価格は近年、上昇していっております。
誰にもこれからマンション価格が上昇するのか下落するのかは分かりません。
しかし、人類の歴史上、インフレ(モノの価値が上昇)してきたのもまた事実です。
欲しい時が買い時という言葉もありますので、まずは資料を取り寄せてみて検討してみましょう。
購入検討することはノーリスクです!
建物は工業製品とは違いその敷地に1つしかございませんので買い逃しの後悔がないようにしましょう。
すぐに行動できる人がチャンスをつかむことが出来ます!
\ ここから物件資料を請求できます! /
【 物件が気になったら、今すぐ行動しよう!! 】
ハザードマップ・液状化・用途地域図



計画地はハザードマップ内なのでしっかり確認していきましょう。
自分が住む場所がどのような地域に位置しているか知っていると、
緊急事態となった時、焦らず対処することが出来ます。
江東区が発表しているハザードアップには
①洪水ハザードマップ
②大雨ハザードマップ
③高潮ハザードマップ
があります。
また、東京都が発表している
④液状化ハザードマップ
がありますので見ていきましょう。
内容を先に記載しますと、
①洪水ハザードマップは3m〜5mの高さに水位が
達すると予測されております。
建物の階数だと2階部分まで水がきます。
気になる方は3階以上の購入を検討して下さい。
②大雨ハザードマップは1m〜3mの高さに水位が達すると予測されております。
住戸が2階以上なので問題ないかと思います。
③高潮ハザードマップだと5〜10mの高さまで水が達すると予測されております。
高潮が気になる方は4階以上の購入を検討して下さい。
④液状化ハザードマップは液状化の可能性が高い地域に該当しております。
洪水ハザードマップ


荒川が決壊したときの洪水ハザードマップは3〜5mの高さになる予測となっております。
建物の2階まで達する可能性がございます。
河川の決壊は期間が長期化する可能性が高いので安全な場所に避難した方が良いと思います。
大雨ハザードマップ


大雨による浸水予測は敷地の一部が1〜3mの高さに指定されております。
駅から建物に向かう道路も敷地に向かって下がっております。シティテラス南砂は1階に住戸がないので
安全ですが、車等は注意が必要になります。
高潮ハザードマップ


高潮ハザードマップは5〜10mの高さに達する予測がされております。
高潮災害の場合は、なるべく高い位置に避難するように心がけて下さい。
液状化ハザードマップ


敷地は液状化の可能性が高い地域に指定されております。建物本体は地盤のしっかりした地層まで杭により
支持されていますので大きな問題はないと思います。その他の公共施設については液状化の影響を受ける可能性がある地域となっております。
子育て環境・ショッピングについて
江東区の子育て支援
江東区独自の『子育て情報ポータルサイト』を運営しております。
子育て情報ポータルサイトは、乳幼児親子向けの施設、子ども家庭支援センター「みずべ」のホームページや区内の子育て支援施設で開催するイベントの開催情報などを掲載するサイトです。
「みずべ」では、たくさんの遊具で楽しく遊べる子育てひろばや、保護者の方にリフレッシュしていただくための一時保育、ちょっとした相談から専門的な内容まで様々な相談に対応する子育て相談をご利用いただけます。
最寄りの「みずべ」は東西線南砂町のすぐ近くにあります。


主な内容は以下となります。。
- 子育てひろば 火曜日~土曜日 10:00~16:00 (予約不要)
- 子育て相談 (面接)毎日 9:00~17:30(電話)毎日 9:00~18:00
- ひととき保育 月曜日~金曜日 9:00~12:00、13:00~17:00 ※1日3時間以内
その他のサービスとしては、プレイルーム・絵本コーナー・赤ちゃんのお部屋・園庭・授乳コーナー・おむつ替えエリア等がありますので活用していきましょう。
また、江東区では中学校卒業前の児童がいる家庭への制度(児童手当や子ども医療費助成など)が充実していますので
安心して子育てできる環境が備わっております。
ショッピングセンター・公園
【トレピックプラザ】
シティテラス南砂から徒歩3分の位置にあるトレピックプラザはイオンとコーナン、スポーツジム等が
組み合わさった複合施設となっております。日常生活に必要なものは揃いますのですごく便利です。


トピレックプラザです。イオンとコーナン、スポーツセンターからなる大型ショッピングモールです。
日常の買い物はもちろんスタバ、マクドナルド、バーミヤン、サイゼリア等の店舗が入っておりマンションから
徒歩3分で行ける距離にあります。便利すぎますね!


スターバックスの入り口です。午前中に訪れましたがいい雰囲気でした。都心のお店よりも広くゆとりを感じました。
買い物の休憩や息抜きに気軽にスタバに行ける環境っていいですよね。


仙台堀川公園です。マンション北側に位置しており交差点を渡るとすぐにアクセスできます。子供を遊ばせるにも
良いし、週末にランニング、サイクリングするにも最適です。何より通って見ると気持ちがいいんですよね。
日中は人通りも多く活気があります。


南砂3丁目公園です。十分な広さがある公園で遊具もあり、子供を遊ばせる環境としては最適な場所でした。
野球場も併設しており、休日には試合を行なっています。隣町の東陽町は松阪大輔選手が育った街です。
子供を育てるには最適な地域環境なのかもしれません。
交通利便性





東西線は日本橋・大手町勤務の方には有利な路線となっております。
- 「南砂町」駅から「日本橋」駅へ直通10分
- 「南砂町」駅から「大手町」駅へ直通12分
- 「南砂町」駅から「品川駅」駅へ乗換35分
- 「南砂町」駅から「新宿」 駅へ乗換34分
今まで長い通勤電車に乗ってこられた方、これからは通勤時間が短くなりできた時間で家族サービスや子供と過ごす時間を大切にできますね。
また、副業に当てて自由に使えるお金を手に入れても良いかもしれません。
職場への通勤時間は短い方が人生が豊かになります。
南砂町に向かう道には南砂3丁目公園があり緑が気持ち良いです。徒歩7分ありますが会社に向かうにも帰ってくるに
も適度な距離なのでリフレッシュできます。


外観・共用部デザインについて
外観デザインについて


モノトーンを基調としたカラーリングになっておりシティ感が出ております。板状の建物形状なので単調になりがちですが、スラブの白ラインで分節して上層階にはマリオンルーバーがアクセントとしてついております。
濃いグレー色と白色によって締まったスタイリッシュなデザインとなっております。





いま時感があるデザインとなっております。


南側は低層の住宅街となっており眺望が抜けております。
前建によって眺望が遮られていませんので晴れた日は気持ちの良い朝を迎えることが出来ます。
折角のマイホームですから眺望にもこだわりたいところです。
共用部について


メインアプローチの入り口です。天井高さがしっかり確保されており風格を感じさせるデザインとなっております。
アクセントとして庇部分が斜めになっていて特徴づけられています。


風除室横にはラウンジも併設されております。


共用部としてキッズ・パーティールームが設けられており雨の日に子供を遊ばせておけたり、子供を見守りながら
ママ友との情報交換も安心して行えます。


テレワークラウンジもありますので家の中以外でも集中して仕事ができるのはありがたいですね。
共用部が充実していると生活に幅が出ますのでありがたいです。
1階平面図


車・自転車と歩車分離がしっかりした平面計画なので子供にもやさしい設計となっております。
1階部分で子供を遊ばせることができる場所はありませんので2階の共用部で遊ばせることになると思います。
24時間ゴミ出し可能なゴミ置場、EV充電車スペースや来客車用駐車場も完備されております。
まとめ
あらためてシティテラス南砂は子育てに最適な環境が揃った物件となっております。
南砂エリアの豊かな自然環境や教育的なリソースが整った住環境は、子供の好奇心を刺激し、学びの機会を増やしま
す。また、遊び場や公園などが近くにある住環境は、子供が外で運動する機会を増やし、身体的な発達を促進します。
これらの要素が整っている【シティテラス南砂】の住環境は、子供たちが健康で幸せに成長するための重要な基盤とな
ることでしょう。
街の魅力としては、紹介した他にも敷地から北に少し行った場所には砂町銀座商店街があったりと下町情緒溢れる街並
みも広がっております。
\ ここから物件資料を請求できます! /
【 欲しいと思った時が買い時、今すぐ行動しよう!! 】








